תב"ע גב/589 – הסתדרות צפון, גבעתיים
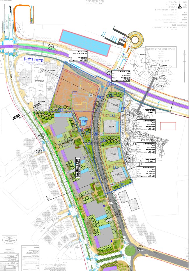
פרוייקט מגורים בגבעתיים הממוקם ברחוב ההסתדרות וכולל בסה"כ 500 יח"ד. קיבל תוקף בשנת 2018.
התב"ע תוכננה עבור עיריית גבעתיים.
פרוייקט מגורים בגבעתיים הממוקם ברחוב ההסתדרות וכולל בסה"כ 500 יח"ד. קיבל תוקף בשנת 2018.
התב"ע תוכננה עבור עיריית גבעתיים.
כל הזכויות שמורות © 2023| הצהרת נגישות
Created by