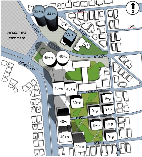
מתחם טייבר פרוייקט פינוי בינוי בגבעת רמב"ם שבגבעתיים, הכולל כ-550 יח"ד. חזרה פרויקטים מאותו תחום לכל הפרוייקטים בתחום